projektliste
öffentliche raumgestaltung
baudenkmäler
kultur
gewerbe
auswahl
wohnen
öffentlich
bildung
soziales
JOBS
BÜRO
PROJEKTE
grundschule thüngen
sanierung
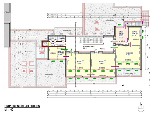
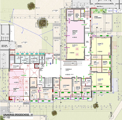
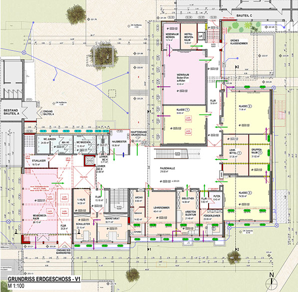
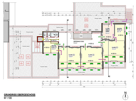
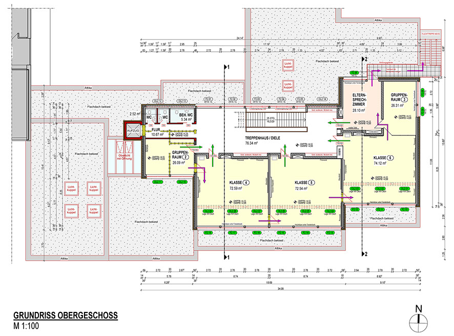
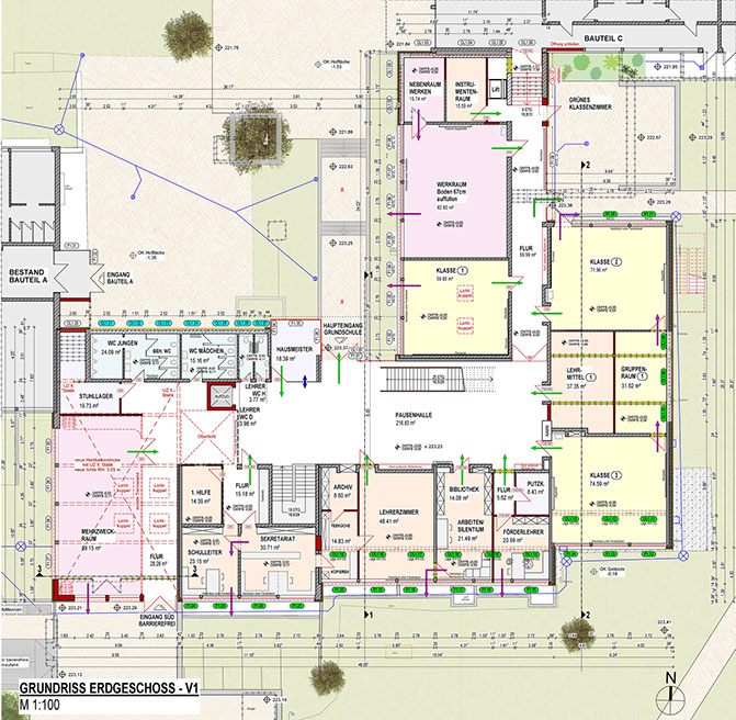
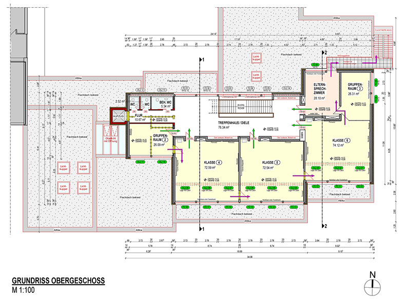
Generalsanierung der Grundschule Thüngen, Bauteil B mit Umbau und Teilsanierung Bauteil A als Ausweichschule. Neugestaltung der Grundschule mit Mittagsbetreuung, barrierefreie Erschließung der Verwaltungs-, Klassenräume und des Werkraums im EG und OG sowie der Mittagsbetreuung im UG. Neugestaltung der Pausenhofflächen.
Projektname
Grundschule Thüngen
Typologie
Bildung
Bauherr
Gemeinde Thüngen
Bearbeitung
Karl Gruber | Kostantin Schug
Tätigkeiten
LPH 1-9
Ort
Thüngen
Bauzeit
Beginn 06/2019 – 09/2021
Status
Planung LPH 3
Nutzfläche
1307 m²
Visualisierung
k.A.