projektliste
öffentliche raumgestaltung
baudenkmäler
kultur
gewerbe
auswahl
wohnen
öffentlich
bildung
soziales
JOBS
BÜRO
PROJEKTE
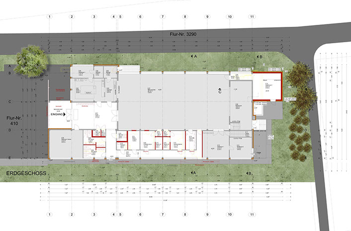
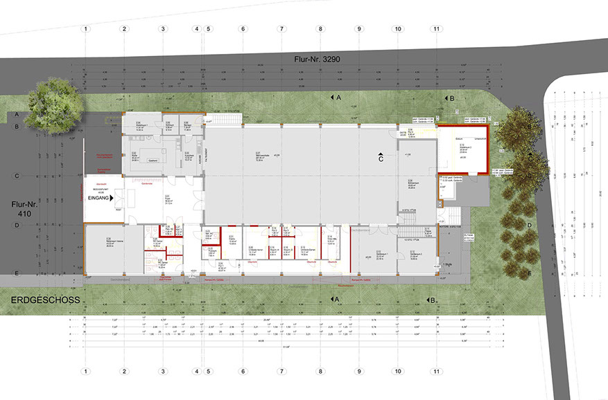
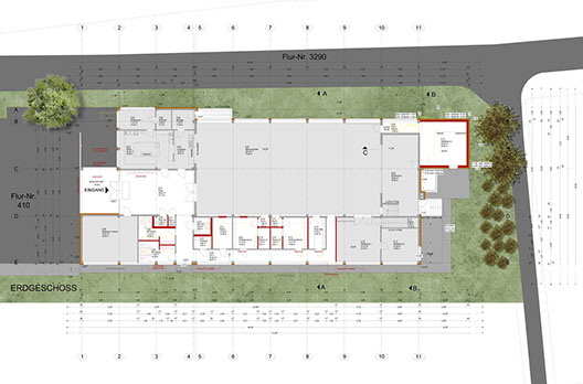
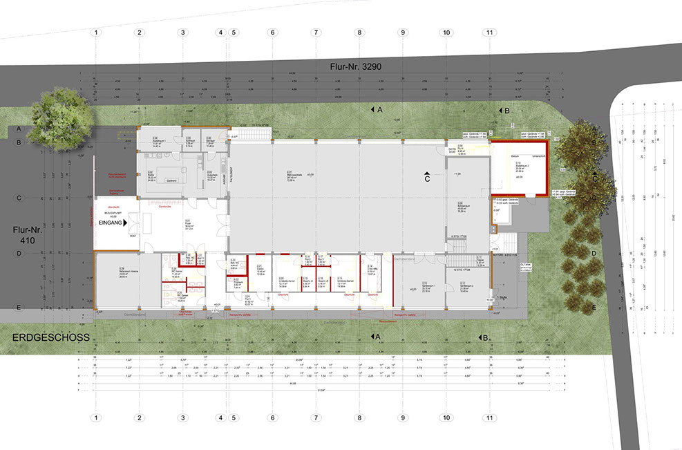
frankenhalle böttigheim
sanierung
Sanierung der Frankenlandhalle Böttigheim.
Projektname
Frankenlandhalle Böttigheim
Typologie
Öffentlich
Bauherr
Markt Neubrunn
Bearbeitung
Manuel Haus
Tätigkeiten
LPH 1-4
Ort
Neubrunn-Böttigheim
Bauzeit
k. A.
Status
in Planung
Nutzfläche
700 m²
Visualisierung
k.A.